


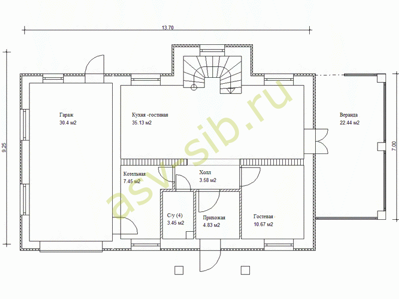
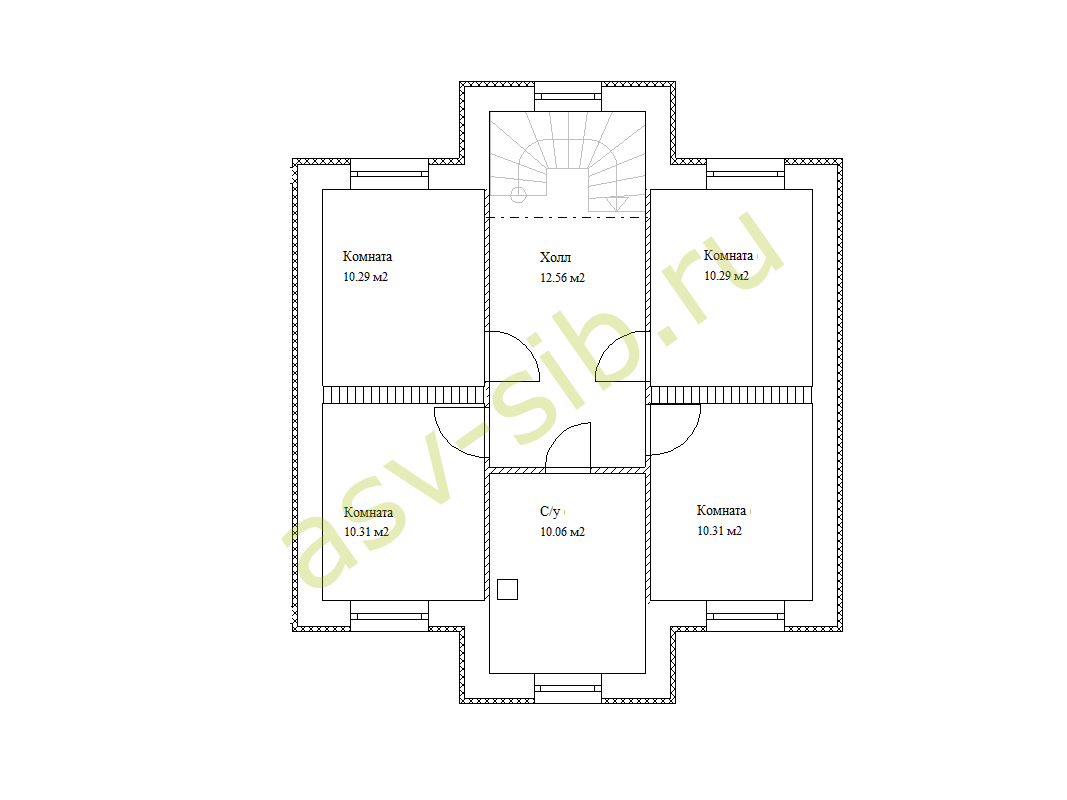
Начал задумываться над постройкой дома. Когда дошло дело до выбора проекта, тут было очень сложно подобрать, то что именно я хочу. Из тысячи просмотренных проектов, нашёл проект П-123a у «АСВ» почти устраивающий меня, но необходимы были на мой взгляд, кардинальные переделки. Обратился в компанию и со мной связался проектировщик Светлана Вячеславовна. Выслушав все мои предложения по проекту, она за пару дней выслала мне предварительный проект, после небольших корректив довели проект до того идеала, который был в моём воображении. После чего я получил готовый проект в электронном и бумажном виде с печатями проектирующей компании.Светлана Вячеславовна очень хороший и грамотный проектировщик, спасибо ей за понимание и помощь. Советую компанию «АСВ»!