Проекты домов
из кирпича
общей площадью
от
9
0
до
460
м
2
.
Проекты домов
из ячеистых бетонов
общей площадью
от
40
до
520
м
2
.
Материал стен: пенобетон, газобетон, газобетон
`
Сибит
`
.
Проекты домов
из бруса
общей площадью
от
65
до
48
0
м
2
.
Материал стен: обычный брус, профилированный или клеёный брус
.
Проекты домов из
оцилиндрованного бревна
общей площадью
от
57
до
31
0
м
2
.
Понравившийся проект можно адаптировать под любой материал стен.
Барнаул
Владивосток
Воронеж
Екатеринбург
Ижевск
Иркутск
Казань
Кемерово
Краснодар
Красноярск
Москва
Нижневартовск
Новокузнецк
Нижний Новгород
Новосибирск
Омск
Петербург
Пермь
Сургут
Томск
Тюмень
Улан-Удэ
Уфа
Хабаровск
Челябинск
Чита
Якутск
Много новых проектов-2026 !
↱
=$
CityName;
?>
Очистить
Проектирование
Главная
Фото со стройки
Контакты
Вопрос-ответ
Поиск проекта
Готовые проекты
▾ Строительство
Строительство дома
Строительство бани
Кровельные работы
Построенные дома
Составление смет
▾ Материалы
Профилированный брус
Клеёный брус
Кирпич
Газобетон
▾ Узнать
Вопрос-ответ
Контакты
▾ Проекты
Готовые проекты
Проектирование
Подбор проекта
Проекты домов из бруса
Проекты домов из бетона
Проекты домов из кирпича
Проекты домов из бревна
Проекты бань
Проекты гаражей
Проекты домов
● Проектирование дома
● Проекты домов из бруса
● Проекты домов из кирпича
● Проекты домов из газобетона
● Проекты домов из бревна
● Интерьеры деревянных домов
● Проекты бань
● Проекты гаражей
● Построенные дома
Виды строительных работ
● Строительство домов
● Строительство бани
● Монтаж и поставка окон
● Отопление, водоснабжение
● Кровельные работы
● Составление смет
Строительные материалы напрямую от производителя
● Кирпич
● Клеёный брус
● Профилированный брус
● Оцилиндрованное бревно
● Газобетон
● Пенобетон
Все
Дом
Баня
Гараж
Прочее
гараж
бассейн
второй свет
Любая
до 100 м2
100 - 150 м2
150 - 200 м2
200 - 300 м2
более 300 м2
Любая
Один этаж
Два этажа
Три этажа
Все
Кирпич
Брус, бревно
Газо-, пенобетоны
Прочее
дом на две семьи
терраса
балкон
+баня
объект:
материал:
площадь:
этажность:
Дома из бетона
>
Проект дома из газобетона П-157
Проект заказан и разработан для строительства в Иркутске, 2017 г.
В избранное
На печать
Характеристики
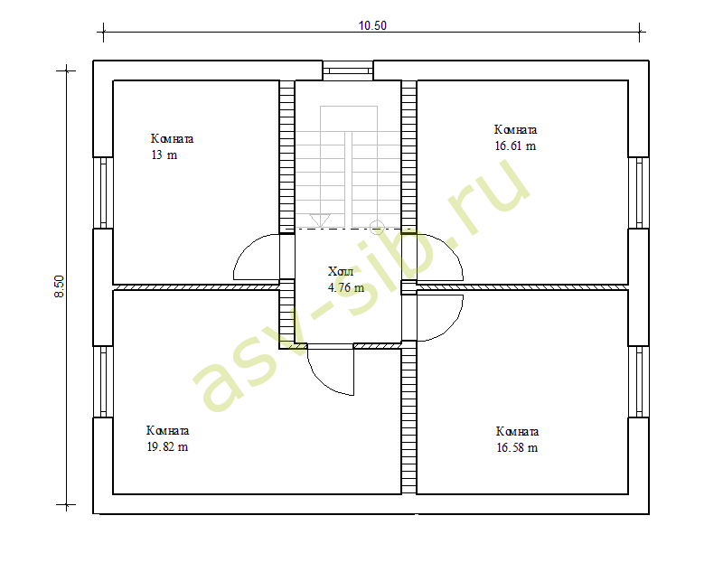
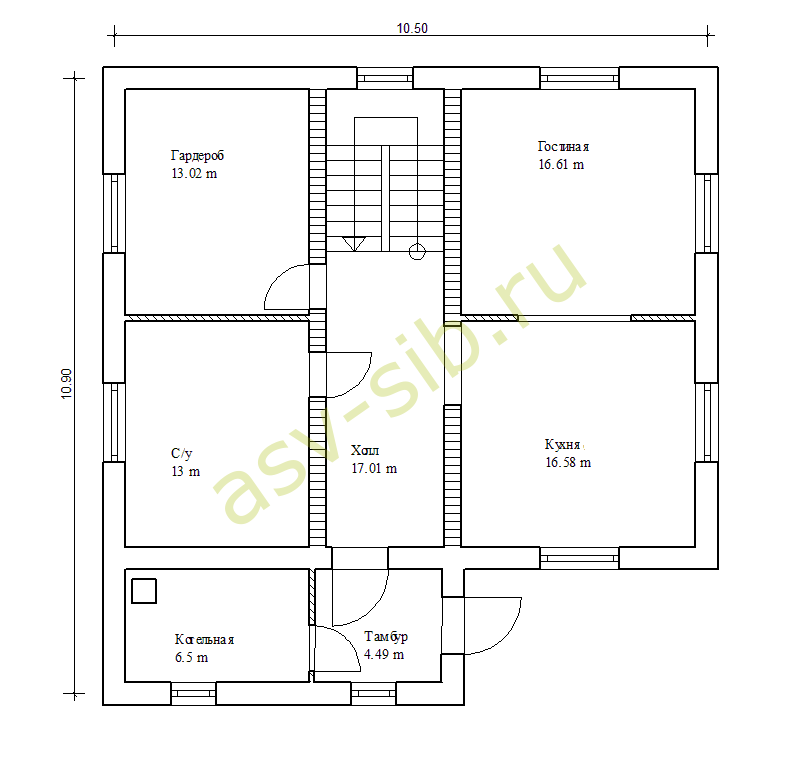
Общая площадь 157.98 м², этажей 2.
Высота первого этажа 
2500 мм
Высота второго этажа 
2500 / 1600 мм
Фундамент 
ленточный
Перекрытие 
по фундаменту, межэтажное
Чердачное перекрытие 
деревянные балки
Стены 
газобетон 400 мм
Отделка 
штукатурка
Кровля 
металлочерепица
Окна, двери 
индивидуальные
Отопление 
твёрдотопливный котёл, электричество
Габариты 
10.9 × 11.3 м
Проект можно адаптировать (переделать) под любой строительный материал.
Купить проект в электронном виде (формат «pdf»)
=
10000
руб.
Готовый проект в электронном виде и на бумажном носителе
=
12000
руб.
Разработать новый проект на базе
П-157
= от 15000 руб.